100) ? false : true; navIsShown = (window.pageYOffset > heroHeight) ? true : false; triggerTransitions = window.pageYOffset > (heroHeight / 2) ? true : false; if (navIsOpen && !atTop && !navIsShown) navIsOpen = false; ">
Toggle Navigation
446 Rainbow Cir, Lake Lure, NC 28746
Images
Floor Plans
Map
View Gallery
Slideshow
Photo Grid
Hide
Previous
Next
446 Rainbow Cir
Lake Lure, NC 28746
Images
Show more
Slideshow
Photo Grid
Hide
Previous
Next
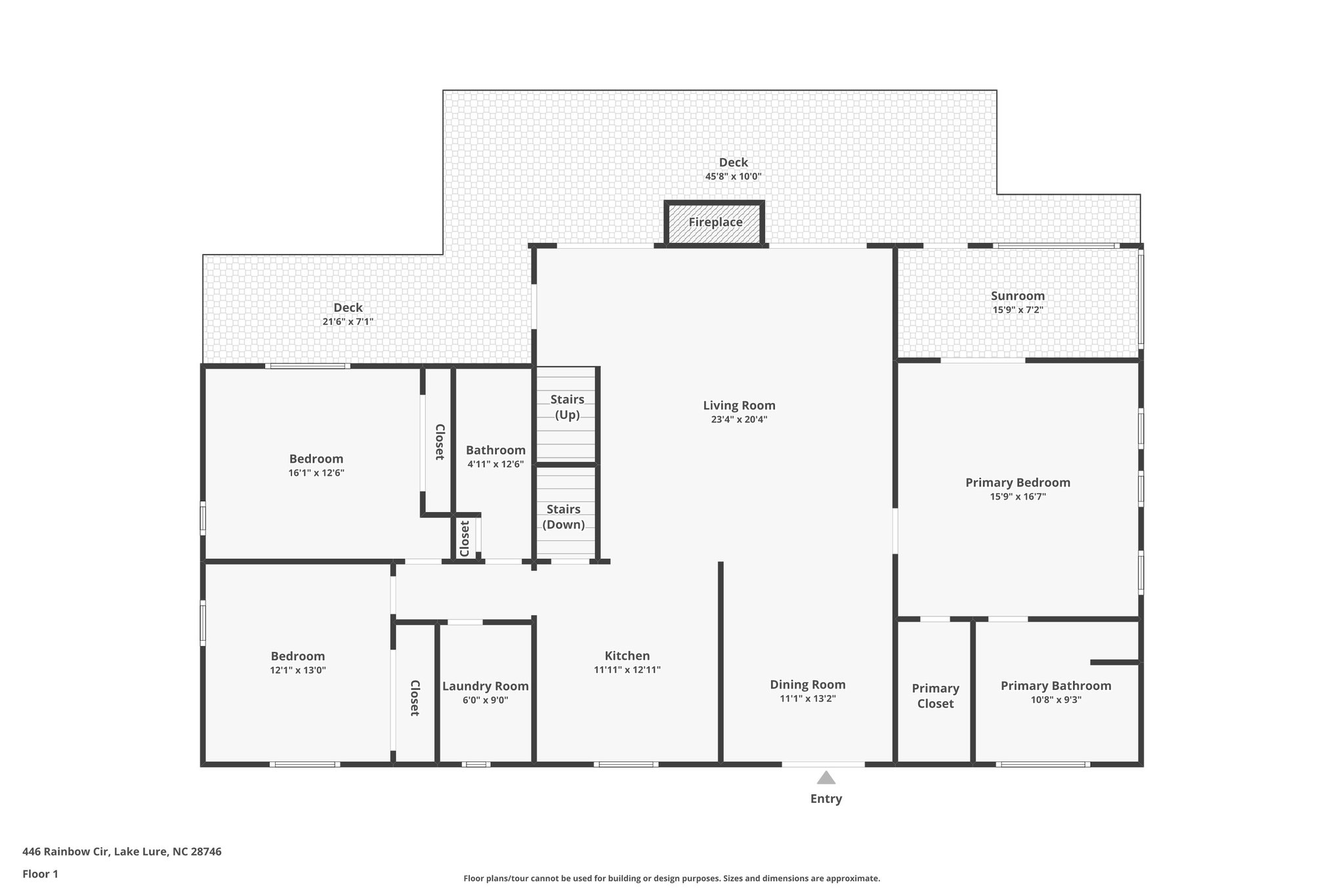
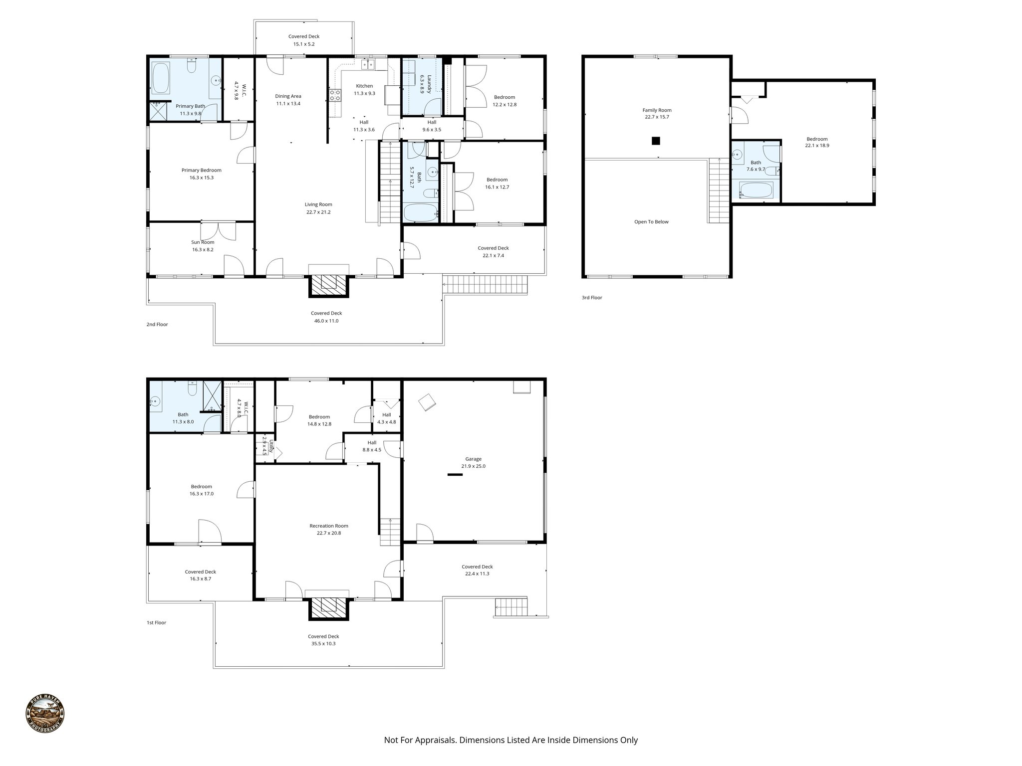
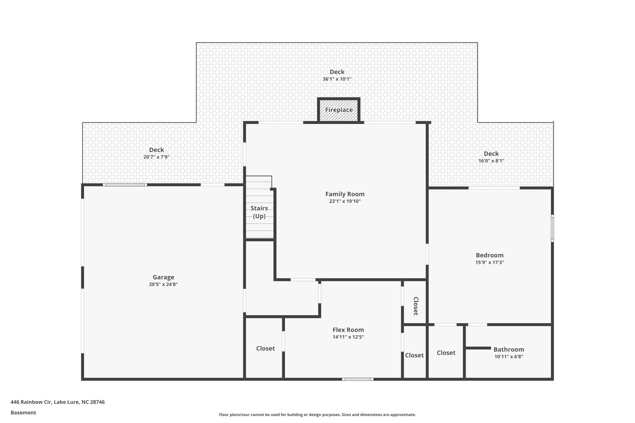
Floor Plans
Slideshow
Photo Grid
Hide
Previous
Next